埃塞WM铁路项目五号桥设计毕业论文
2020-04-10 16:11:08
摘 要
本设计为埃塞俄比亚铁路五号桥的设计计算,根据地形地质情况和,拟定了预应力混凝土连续梁桥,独塔混凝土斜拉桥,以及上承式钢管混凝土拱桥三种桥型方案。以经济、安全、适用、美观为原则,结合项目当地的条件,最后选取桥梁为三跨预应力混凝土连续梁桥。
在方案比选基础上,对所选定方案预应力混凝土连续梁桥进行了详细设计,拟定了细部尺寸,结合悬臂浇筑施工方案,开展了施工阶段以及成桥后结构内力分析计算。采用Madis Civil软件,建立了从施工阶段到最后成桥整个过程的模型,分析施工阶段应力和变形,对各控制截面应力进行了验算,并确定了预拱度以指导施工。通过对控制截面成桥状态分析,按最不利位置布载,求出了控制截面最大结构内力,最后进行控制截面进行正截面抗弯承载力验算,裂缝验算,和正截面法向应力验算。
关键词:预应力混凝土,三跨连续梁桥,单箱单室箱型截面
Abstract
This design is the calculation of the Ethiopian Railway No. 5 Bridge. Based on the topographic geological conditions, three types of prestressed concrete continuous girder bridges, single tower concrete cable-stayed bridges and top-loaded concrete-filled steel tubular arch bridges are planned. Based on the principles of economy, safety, application, and beauty, combined with local conditions of the project, the bridge was finally selected as a three-span prestressed concrete continuous beam bridge.
On the basis of comparison and selection of plans, the prestressed concrete continuous girder bridge of the selected scheme was designed in detail, detailed dimensions were elaborated, combined with the cantilever construction scheme, and the internal force analysis of the construction stage and the completed bridge was carried out. Madis Civil software was used to establish a model from the construction phase to the final stage of the completion of the bridge. The stress and deformation during the construction phase were analyzed. The stress of each control section was checked, and the pre-camber was determined to guide the construction. Through the analysis of the control section bridge state, the maximum structural internal force of the control section was determined by loading the most unfavorable position. Finally, the control section was used to check the normal section bending capacity, check the crack, and check the normal stress of the normal section.
Key words: prestressed concrete, three span continuous girder bridge, single box and single chamber box section
目录
摘要 3
Abstract 3
1项目概况 4
1.1 桥位基本情况 4
1.1.1桥址概况 4
1.1.2水文资料 4
1.1.3不良地质及特殊岩土 4
1.2 设计标准 4
1.3 设计依据 5
2.1概述 6
2.2预应力混凝土连续梁桥 7
2.2.1方案构思 7
2.2.2总体布置 7
2.2.3下部结构拟定 8
2.3独塔混凝土斜拉桥 9
2.3.1方案构思 9
2.3.2总体布置 9
2.3.3上部结构拟定 10
2.3.4下部结构拟定 11
2.3.5施工方案拟定 12
2.4上承式钢管混凝土拱桥 13
2.4.1方案构思 13
2.4.2总体布置 13
2.4.3上部结构拟定 14
2.4.4下部结构拟定 15
2.4.5施工方案拟定 15
2.5方案比选 15
2.5.1方案技术经济比较 15
2.5.2推荐桥型方案 16
2.6 主要材料及材料性能 17
2.6.1混凝土 17
2.6.2预应力材料 17
3预应力混凝土连续梁桥设计 18
3.1上部结构拟定 18
3.1.1主梁 18
3.1.2附属工程 19
3.2下部结构拟定 19
3.2.1桥墩 19
3.2.2桥台 19
3.2.3基础 20
3.3施工方案拟定 21
4、模型建立 22
4.1 计算模型 22
4.1.1节点单元 22
4.1.2边界条件 22
4.1.3施工阶段划分 22
4.1.4 主要钢筋布置图及材料用表 24
4.2 截面特性 29
4.3 荷载工况及荷载组合 31
4.3.1整体升降温 31
4.3.2自重 31
4.3.3支座沉降 31
4.3.4徐变收缩 31
4.3.5可变荷载 32
4.3.6荷载组合 32
5模型分析 33
5.1施工过程分析 33
5.1.1施工工况荷载 33
5.1.2施工过程应力分析 33
5.2成桥状态分析 39
5.2.1挠度分析 39
5.2.2承载能力极限状态下梁单元内力 44
6、截面验算 51
6.1 截面受压区高度 51
6.2 正截面抗弯承载能力验算 51
6.2.1承载能力极限状态各控制截面弯矩 51
6.2.2跨中截面抗弯承载能力验算 52
6.2.3跨中截面抗弯承载能力验算 52
6.3结构正截面抗裂验算 54
6.3.1支点截面 54
6.3.2 1/4截面 54
6.3.3 跨中截面 55
6.4 正截面混凝土法向压应力验算 55
7结论 56
参考文献 57
致谢 58
1项目概况
桥位基本情况
1.1.1桥址概况
该桥地面高程1386-1512m,全长247.15m,桥址区地形起伏大,坡度较陡,区域内目前暂无便道,交通条件差。
1.1.2水文资料
本桥系季节性排洪,其设计流量
。
1.1.3不良地质及特殊岩土
通过地址测绘,测区范围不良地质为危岩落石和顺层,无特殊岩土。
- 危岩落石:隧道出口D2K170 200~D2K170 210段、D2K170 295 ~ D2K170 310段、D2K170 350~D2K170 365段、分布灰岩,受节理裂缝切割及风化影响。该段岩体破碎,其直径0.5~5m不等,局部形成岩腔,如果随着风化裂隙的加剧,在外力的推动下,将发生崩落,形成危岩落石。
- 顺层:桥址区岩层走向与线路方向夹角36°,岩层倾角15°,倾向线路左侧,桥基开挖右侧岩层可能存在顺层滑动,应加强防护。
设计标准
- 设计桥梁的地质地形图一份
- 桥面宽度,采用双幅桥面,单幅桥宽7m
- 荷载等级:设计车辆荷载等级为公路1级
- 桥面铺装:桥面采用10cm沥青混凝土铺装
- 桥梁设计基准年:100年。
设计依据
该桥采用中国标准进行建模,采用如下中国规范。
1)《公路钢筋混凝土及预应力混凝土桥涵设计规范》(JTG D62-2012)
2)《公路桥涵设计通用规范》(JTG D60-2015)
3)《公路工程技术标准》(JTG B01-2014)
4)《公路桥涵地基与基础设计规范》(JTG D63-2015)
2桥梁方案比选
2.1概述
本次埃塞WM铁路五号大桥设计,根据地质情况,水文情况,当地温度以及技术标准拟定了三种满足要求且不同体系的的桥型方案,以下分别是预应力混凝土连续梁桥,独塔混凝土斜拉桥以及上承式钢管混凝土拱桥三种方案。如图2.1至2.3所示

图2.1 预应力混凝土连续梁桥方案(单位:m)

图2.2 独塔混凝土斜拉桥方案(单位:m)

图2.3 上承式钢管混凝土拱桥方案(单位:m)
2.2预应力混凝土连续梁桥
2.2.1方案构思
五号桥桥址区地形起伏大,坡度陡峻,区内目前暂无便道,交通条件差,若采用梁桥布置,则采用两墩三跨,否则高墩数目过多,不便于施工,并且会使造价过高。当采用三跨方案时,主梁跨径为110m左右,所以宜采用预应力混凝土连续梁桥。预应力混凝土连续梁桥的优点许多,首先,其受力对于简支梁来说更加的合理,由于两端的正弯矩可以减少跨中的正弯矩,所以预应力混凝土连续梁桥的跨径更大,该方案更加适合。
2.2.2总体布置
1纵断面布置
(1)跨径拟定:根据资料可得桥梁全长272.47m,根据目前我国国内三跨连续梁桥的设计经验,该方案选用0.574,初拟孔跨布置为(62.7 108 62.7)m连续梁 124m跨径组合。如图2.4所示。

图2.4 跨径布置示意图(单位m)
(2)设计高程的确定:该桥设计起点的桩号为D2K170 210.150,高程为1494.827m,终点桩号为D2K170 482.620,高程1500.508m,中心桩号为D2K170 333,高程为1497.815。
2横断面布置
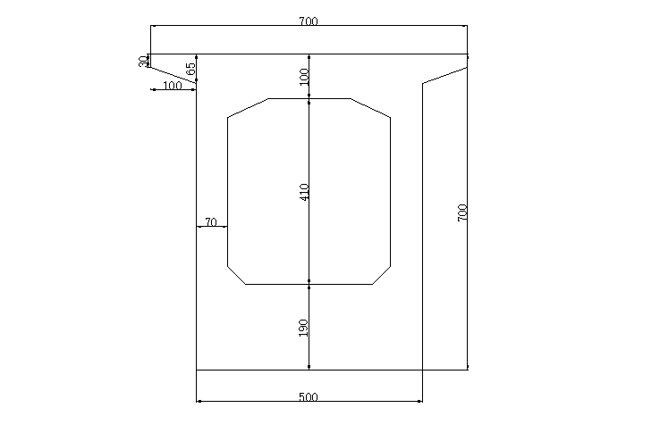
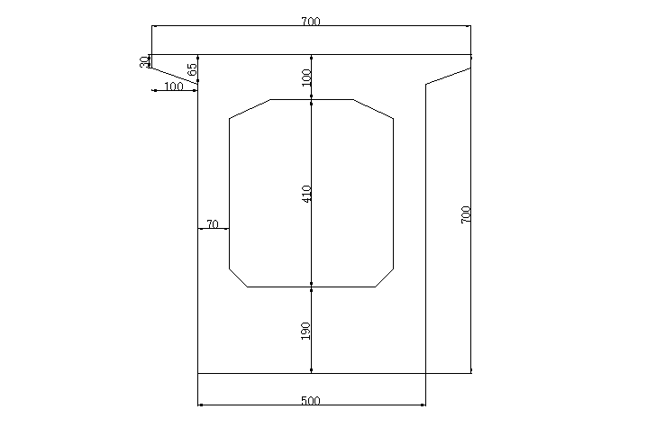
根据埃塞WM铁路五号桥的设计资料,初步拟定桥宽为14m,为了施工方便和技术要求,将其设计成分离式的双幅车道。为了排水的需要,横坡设置为2%,断面采用单箱单室的横断面,支点截面到跨中截面采用二次的曲线变化,根据相关规范横截面尺寸如图2.5,2.6所示

图 2.5跨中梁截面(单位cm)

图 2.6支点截面(单位cm)
3平面布置
桥梁接于Weldia至Mekell铁路,铁路线型为R=1200,ls=120,R=600,ls=120的s型曲线上。
2.2.3下部结构拟定
1桥墩
桥墩形式:本桥采用实体式桥墩。
2桥台
桥台形式:采用U型桥台,承接整体双幅桥。
3基础
为满足承载要求,桥台采用刚性扩大基础。
2.3独塔混凝土斜拉桥
2.3.1方案构思
桥梁全长272.47m,可以选择斜拉桥这种桥型,斜拉桥对于梁桥和拱桥来说,桥的形式更加新颖美观,虽然其发展历史比较短,但是相关技术在国内已经比较成熟,而且国内已经建成许多大跨度的斜拉桥。该桥桥址地基稳定,枯水期无水,所以相较于双塔斜拉桥,独塔斜拉桥的形式更加适合该桥,首先,该桥的跨径不大,所以独塔的形式满足受力的要求,如果采用双塔斜拉桥将造成不必要的浪费,而且不便于施工。
2.3.2总体布置
1纵断面布置
- 跨径确定:斜拉桥总跨径275m,布置为170 105两跨,跨径比为0.62,在0.51.00范围内。如图2.7所示。

图2.7 跨径布置示意图(单位m)
(2)设计高程的确定:该方案设计高程同预应力连续梁桥的设计高程。
2横断面布置
在连续梁桥方案中,总宽14m的桥面置成为了双幅桥,其设计是为了施工的方便和结构受力的简化,但是在斜拉桥的方案设计中,双幅桥不仅不会减轻施工的难度,反而会增加施工的难度,所以对于斜拉桥,采用单幅桥面板的方案。
3平面布置
平面线形同预应力连续梁桥的方案。
2.3.3上部结构拟定
1主梁
(1) 截面形式:采用肋板式截面。
(2) 尺寸拟定: 根据国内外混凝土独塔斜拉桥设计经验,高跨比大多在1/601/100, 本桥高跨比取1/100,初拟截面高度为1.7 m,板肋厚度为1.5m,桥面板厚0.55m,截面尺寸如图2.8所示。
图2.8 梁截面(单位cm)
2索塔
(1)索塔形式:采用H型索塔。
(2)尺寸拟定:根据国内外已有斜拉桥的设计资料,最外侧斜拉索的倾角,宜控制在25°45°左右,对于两跨结构塔高H取70m。截面尺寸长边4m,短边3m。横系梁高4m。如图2.9所示。

图2.9 主塔尺寸(单位m)
3斜拉索
斜拉索采用单索平面布置,纵桥方向采用扇形,主跨外侧无索区长度25m,为主跨径的1/7,外索倾角选用25°,内侧无索区长度13m,为主跨径的1/13.1,间距为11.边跨外侧无索区长度取为8m,外索倾角选用34.9°,内侧无索区长度9m,间距11,索塔上斜拉索间距为11X 2m,两侧锚固交于索塔中线,固接交点在塔梁顶端高度67.6m47.6m。
2.3.4下部结构拟定
1桥墩
(1)桥墩:该方案使用塔墩梁固接的刚构体系,所以桥墩与索塔固接。
(2)尺寸拟定:塔梁固接处的桥墩采用H型双肢结构,顺桥向长度4m,横桥向长度3m,总高度为30m,其壁厚与上部主塔相同,为lm;基础以上桥墩截面形状为双室矩形空心薄壁墩,尺寸取为壁厚3m,高度30m。
2桥台
桥台形式与预应力连续梁桥方案相同,其尺寸拟定与其一致,但是两种桥型的不同之处为连续梁桥采用的是双幅桥面,而斜拉桥采用的是单幅桥面,所以支座的设置存在不同。
3基础
(1)采用刚性扩大基础,具体方案同预应力连续梁桥的基础设计。
(2)由于该桥地质情况良好,地基承载高,所以主塔桥墩的基础形式采用端承桩,其具体尺寸如图2.10所示。

图2.10 桥墩基础尺寸(单位m)
2.3.5施工方案拟定
1下部施工
桩基础的施工方式采用钻孔灌注桩的现场施工方式,浇筑承台后,主墩采用爬模的施工方式。
2上部施工
采用悬臂浇筑的施工方式,在主墩出设临时固结,浇筑0号块,张拉预应力,在0号块处设置挂篮,浇筑1号块,成型后张拉一号块预应力,重复此操作过程,最后边跨合拢,拆除临时固结,完成体系转换。
2.4上承式钢管混凝土拱桥
2.4.1方案构思
从该桥的地质情况来看,该桥处于较深的沟谷地段,如果采用预应力连续梁桥的方案,需要设置两个高墩,如果采用斜拉桥的方案,会设置一个高墩,这都增加了下部结构的工程量,为了减少这部分施工,同时由于地质条件良好,如果采用拱桥的方案,桥墩处的地质条件满足受力,所以可以采用拱桥的方案,对于峡谷地段,采用上承式拱桥。相对于梁桥的受弯,拱桥的受力特点为受压,能够更好的利用混凝土的受压强度较高的性能,并且拱桥线型美观,能够很好的与环境融为一体,增加美感。
2.4.2总体布置
1纵断面布置
(1)跨径矢高拟定:桥梁总跨径为272.47m,初步取净跨径为180m,净矢跨比取5/18,净矢高取50m。边跨设置2×21m的引桥,具体的拱桥的尺寸如图2.11所示。

图2.11 跨径布置示意图(单位m)
(2)确定设计高程:同连续梁桥以及斜拉桥。
2横断面布置
横断面的形式取为单幅形式,与斜拉桥的形式基本相似。
3平面布置
同预应力连续梁桥以及斜拉桥方案。
2.4.3上部结构拟定
1拱肋
拱轴线:该桥采用悬链线的形式。悬链线拱轴线对于拱上建筑的适应性比较强,而且已经有完备的计算图表以供查阅,我国大中型的跨径的拱桥采用最普遍的拱轴线型。而圆弧线常用于小跨径的梁桥,抛物线用于恒载强度比较均布的拱桥,其适用于中承式或下承式简单体系拱桥和组合体系拱桥。
以上是毕业论文大纲或资料介绍,该课题完整毕业论文、开题报告、任务书、程序设计、图纸设计等资料请添加微信获取,微信号:bysjorg。
相关图片展示:







课题毕业论文、开题报告、任务书、外文翻译、程序设计、图纸设计等资料可联系客服协助查找。
