组合梁桥施工支架计算分析毕业论文
2020-04-10 16:11:31
摘 要
ABSTRACT 6
1 绪论 7
1.1. 课题的来源和研究的意义 7
1.2. 国内外研究现状分析 8
1.3. 研究目标和研究内容 9
2 工程简介 10
2.1. 工程概况 10
2.2. 气象、水文、地质情况 13
3 支架系统结构拟定 15
3.1. 地基处理 15
3.2. 临时支墩设计 15
3.3. 临时支架设计 17
3.4. 临时支架基础沉降计算 19
3.5. 临时支墩的施工要求 19
3.6. 临时支架安装流程 20
3.7. 悬臂支架拆除 21
4 验算依据 21
5 荷载验算 22
5.1. 恒载 22
5.2. 活载 22
5.3. 验算参数 23
6 工况一临时支架结构的强度、刚度及稳定性验算 23
6.1. 横向双拼工字钢验算 25
6.2. 双拼工字钢验算 27
6.3.钢管验算 28
6.4.槽钢剪力撑验算 31
6.5.角钢剪力撑验算 33
6.6. 地基承载力验算 34
7 工况二临时支架结构的强度、刚度及稳定性验算 37
7.1.木塑板验算 41
7.2.纵向方木验算 42
7.3. 横向工字钢验算 43
7.4.钢管验算 45
7.5. 贝雷梁验算 46
7.6. 贝雷梁联系验算 48
7.7. 横向双拼工字钢验算 49
7.8. 双拼工字钢验算 51
7.9.钢管验算 52
7.10.槽钢横向剪力撑验算 55
7.11.角钢剪力撑验算 57
7.12. 地基承载力验算 58
8 结论 62
9 参考文献 64
10 致谢 66
摘要
G107分离式立交桥位于广水市杨寨镇余店村境内,为跨越G107而设。桥梁全长112.08m,上部结构采用钢-混组合梁,根据实际情况及钢箱梁结构特点,确定如下钢箱梁总体施工方案:
钢箱梁在厂家分段加工制作,然后由大型运输车从公路运输至现场,用大型起重设备对整体钢箱梁分段吊装到临时支墩上,在临时支墩上进行两个整体段之间的拼接,全桥拼接完成后进行桥梁支撑体系转换,改由桥台、桥墩支撑。钢箱梁吊装拼接完成后临时支墩暂不拆除,用作桥面翼板模板支架。混凝土面板悬挑部分模板支架利用临时支墩承重,采用贝雷架和钢管架组合支架。在临时支墩上安装贝雷架,在贝雷架上搭设钢管架和调高装置。
为保证本工程施工的顺利进行,有效地降低安全事故风险,本毕业设计对钢箱梁施工中涉及到的临时支墩、临时支架进行强度、刚度、稳定性以及地基承载力的验算,并对临时支墩、临时支架的架设、拆除做出指导。
关键字 :钢混组合梁 临时支墩 贝雷梁 强度 刚度 稳定性 承载力
ABSTRACT
The G107 Separated Interchange Bridge is located in Yudian Village, Yangzhai Town, Guangshui City and is designed to cross G107. The total length of the bridge is 112.08m. The upper structure adopts a steel-concrete composite beam. According to the actual situation and the structural characteristics of the steel box girder, the following general construct ion scheme for the steel box girder is determined:
Steel box girders are produced subsection processing in the factory, and then transported by large transport vehicles to the site. The lifting of steel box girders to the temporary piers is carried out with large lifting equipment, and the segmentation installation are made on the temporary support piers. After the completion of full bridge assembling, the support system of bridge conversed to the support by the abutment and pier. Temporary support piers are not removed after the steel box girder erection and splicing is completed, and will be used as a deck flange template support. The temporary support pier support the concrete panel cantilevered of formwork , and adopts the Bailey Beam and the steel pipe frame combination support. The Bailey Beam was installed on the temporary pier, and the steel pipe frame and the height-adjusting device were erected on the Bailey Beam.
Key Words:steel-concrete composite beam temporary pier Bailey Beam intensity rigidity stability bearing capacity
绪论
课题的来源和研究的意义
G107分离式立交桥(中心桩号K4 081.5)位于广水市杨寨镇余店村境内,为跨越G107而设。桥梁全长112.08m,上部结构采用钢-混组合梁,下部结构桥台采用柱式台,桥墩采用柱式墩,墩台采用桩基础。钢-混组合梁为钢箱梁 钢筋混凝土连续梁结构,跨径为30 45 30m,总长105m,平面位于直线上。半幅桥宽12.75m,组合梁梁高2.0m,采用双箱单室断面。
根据实际情况及钢箱梁结构特点,确定如下钢箱梁总体施工方案:
钢箱梁采用纵向分段的方式在厂家加工制作,底漆及箱内中间漆在厂内涂装,然后由大型运输车从公路运输至现场,用大型起重设备对整体钢箱梁分段吊装到临时支墩上,在临时支墩上进行两个整体段之间的螺栓拼接,全桥拼接完成后进行桥梁支撑体系转换,改由桥台、桥墩支撑。钢箱梁吊装拼接完成后临时支墩暂不拆除,用作桥面翼板模板支架。
本毕业设计以此工程为背景,对钢箱梁施工中涉及的临时支墩和模板支架进行设计和验算,以保证本工程施工的顺利进行,确保施工过程中临时支墩和模板支架的正常使用,保证人员安全,最大限度地控制危险源,有效地降低安全事故风险,尽量避免安全事故造成的人员伤亡和财产损失,认真落实“安全第一、预防为主、综合治理”的安全生产方针。
国内外研究现状分析
钢-混凝土组合梁一般由钢筋混凝土桥面板和钢梁两部分组成,是在钢结构和混凝土结构基础上发展起来的一种新型结构。它主要通过在混凝土翼缘板和钢梁之间设置剪力连接件(栓钉、槽钢、弯筋等),抵抗两者在交界面处的相对滑移及掀起,使之成为一个整体而共同工作,对于连续梁,可在负弯距区施加预应力或通过"强迫位移法"来调整负弯距区内力。
钢-混凝土组合梁中,混凝土受压,钢梁受拉,充分发挥了混凝土和钢材的独特性能优势,并且将钢筋混凝土板和钢梁有机地组合成一个统一的整体,从而使钢筋混凝土板参与组合梁结构整体的工作,故这种结构比传统的非组合梁承载能力有显著的提高,在同样的钢梁结构条件下,组合梁竖向上的刚度要远大于非组合梁的刚度。与传统的钢梁相比较,梁结构的挠度也可按照需求进行相应的调整,并且还可以有效地提高梁结构的自振频率;组合梁上的翼缘板一般都比较宽大,这样就可以有效地提高钢梁侧向上的刚度和承载强度。同时,组合梁还可以降低梁的高度,节约钢材的使用量,进而降低整个工程的造价和成本。
钢-混凝土组合梁施工的一般流程为:钢梁在梁场预制并焊接剪力连接件→钢梁的架设→安装横隔梁及小纵梁(有时不设小纵梁)→安装预制混凝土板并浇筑接缝混凝土或支搭现浇混凝土桥面板的模板并铺设钢筋→现浇混凝土→混凝土养护→张拉预应力束→拆除临时支架或设施。
近年来,钢-混凝土组合梁在我国城市立交桥梁及建筑结构中的应用·越来越广泛,并且正朝着大跨度的方向发展。钢-混凝土组合梁兼有钢结构和混凝土结构的优点,具有显著的技术经济效益和社会效益,适合我国基本建设的国情,是未来桥梁结构体系的主要发展方向之一。
研究目标和研究内容
研究(设计)的基本内容主要包括支架系统结构拟定、荷载验算、支架结构的强度刚度稳定性验算。
研究(设计)的目标:
(1)掌握支架的设计计算过程
(2)熟悉结构分析软件MIDAS
(3)熟练掌握绘图软件AutoCAD的应用
(4)支架的设计能够达到相关规范的要求
工程简介
工程概况
1)总体布置
G107分离式立交桥(中心桩号K4 081.5)位于广水市杨寨镇余店村境内,为跨越G107而设。桥梁左幅起点桩号K4 036.46,终点桩号K4 148.54;右幅起点桩号K4 025.46,终点桩号K4 137.54,桥梁全长112.08m。其中跨越G107按照4车道24.5m一级公路路幅预留,采用45m主跨一孔跨越。本桥设计荷载等级为公路-Ⅰ级,桥面净宽2×11.75 m,桥平面位于直线上,桥面横坡为双向2%,纵断面纵坡-1.6%,桥下净空5.5m。

图 2‑1 G107分离式立交位置平面布置图
2)下部构造
下部结构桥台采用柱式台,桥墩采用柱式墩,墩台采用桩基础。桩基础按照摩擦桩设计。桥台桩基础设计长分别为21.935m、22.065m,桩径1.8m;桥墩桩基础设计长24m(包含桩间系粱1.6m高),桩径2m,桥墩立柱高4.523~5.153m,桩径1.8m。为改善行车条件,左右幅桥均采用一联设置,在0、3号桥台处各设一道D80型伸缩缝,桥台、桥墩支座均采用GPZF(2)盆式支座。
3)上部结构
上部结构采用钢-混组合梁,钢-混组合梁为钢箱梁 钢筋混凝土连续梁结构,跨径为30 45 30m,总长105m,平面位于直线上。半幅桥宽12.75m,组合梁梁高2.0m,采用双箱单室断面。桥面横坡由箱梁腹板变高形成,底板水平。
钢主梁横桥向为两个单室钢-混组合箱梁结构,钢箱梁采用开口截面形式,单箱底宽3.25m,箱间距3.25m,钢箱梁两侧各悬挑1.5m,钢箱梁结构高1.7m,混凝土板高0.09 0.21m,即组合梁高2m。

图 2‑2钢-混组合梁横幅布置标准图
钢箱梁主要结构部件由底板、两侧腹板、横隔板、翼板、横向联系梁、底板加劲肋以及其他肋板组成

图 2‑3钢箱梁结构部件简示图

图 2‑4钢梁主要结构示意图
开口截面钢箱梁每个腹板对应设置的顶板宽900mm,厚16mm或36mm,顶板上正弯矩区设Φ22圆柱头栓钉,纵向间距150mm,横向间距120mm,负弯矩区设抗拔不抗剪连接钉,纵向间距250mm,横向间距250mm;箱梁底板在正弯矩区域为18mm或20mm厚,在负弯矩区域为24mm厚,设三道纵向加劲肋;两道腹板厚14mm,不等高,以满足桥梁横坡要求,腹板上每1.5m设一道宽210mm竖向加劲肋。
桥面混凝土板采用新型钢筋混凝土叠合板结构,厚30cm。由9cm厚预制混凝土板和21cm厚现浇混凝土叠合构成,预制板长245cm,宽90cm,由预制场加工完成后,运输至现场安装,并作为后浇层混凝土的模板。
气象、水文、地质情况
1)地形、地貌、地质构造
桥址区位于微丘区,路线上跨G107国道,国道宽24.5m,两侧地势较略微起伏,小桩号端左幅桥台位于水坑内,附近为旱田,地面标高62.4-63.9m,植被不发育。
桥址区属构造剥蚀丘陵、微丘区,出露、揭露的地层主要为第四系冲洪积粉质粘土及砂岩,未发现明显不良地质现象,无特殊性岩土发育。通过地质柱状图所示,桥址区地质表层为3.7~8m左右粉质黏土,[fa0]=200Kpa,其下2.4~5.7m左右强风化砂岩,[fa0]=350Kpa,再其下为20.3m左右中风化砂岩,[fa0]=600Kpa。地质纵断面图如下:

图 2‑5 G107分离式立交桥地质图
2)水文、气象
桥址区无地表水发育。地下水为第四系松散层孔隙水和基岩裂隙水,第四系松散层空隙水主要赋存于冲洪积层,水量较贫乏,基岩裂隙水主要赋存于基岩的风化层及其节理裂隙中,水量较贫乏。根据区域水文资料及水质分析资料,桥址区地下水对混凝土结构有微腐蚀性。
本桥所经区域主要属北亚热带季风气候,具有从亚热带向暖温带过渡的特征。光照充足,热量丰富,无霜期长,降水丰沛,雨热同季,年均温15.8~16.6℃,极端最高气温43.1℃,极端最低气温-14.2℃。年平均日照时数为1934.8~2142.8小时,无霜期为250~ 270天,年均降水量992.9~1331.1毫米。本区风向六、七月份多为东南风,其余月份多为北风或偏北风,年平均风速2.1~3.0米/秒,最大风速为22米/秒。
支架系统结构拟定
地基处理
现场除G107国道扩建部分为压实路基外,两侧均为荒地或者农田。为保证地基稳定性,在施工支架前将表面松土清除出去,下挖基坑约0.5米深,然后再进行承载力试验,同时应探明是否有软弱层。如承载力没有达到58.46kpa,需对地基进行处理,处理方法是:基坑内填20~50cm砂砾垫层,具体厚度应根据实际承载力进行计算,砂砾垫层要用20吨压路机压实,要求整个地基范围内要全部压实,以防不均匀沉降。回填地基处理后,测出标高数据,再进行立模浇捣,混凝土基础按照设计图布置钢筋,按施工图预埋钢立柱的地脚螺栓、防撞立杆、增强钢筋,浇捣时确定其编号、标高和钢箱位置。
临时支墩设计
本桥上部结构为双幅连续钢-混组合梁,根据设计意见和现场情况将钢箱梁进行纵向分割,现场拼装连接,为保证现场能正常吊装拼接施工,需在每个节段的分界线处设立临时支墩。临时支墩布置具体见下图:

图 3‑1临时支墩平面位置示意图
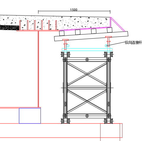
临时钢支墩采用Φ409×10mm的钢管通过角钢∠100×100×7mm、槽钢[20a连接而成的立体钢支墩,顶部采用双排横向36#a工字钢与钢支墩立柱焊接。在箱梁底以下1.8米处设立作业平台,平台上铺18mm工程模板,四周围护防火安全网,做好安全防护措施,确保施工期间行人及行车安全。为减小钢箱梁体形变和调整箱梁空间位置,在箱体与支墩相连部位设立临时支座,临时支架两边顶部各设置3台30t千斤顶,具体布置见临时支墩细部图:

图 3‑2临时支墩立面图

图 3‑3临时支墩基础连接示意图
临时支架设计
混凝土面板悬挑部分模板支架利用临时支墩承重,采用贝雷架和钢管架组合支架。在临时支墩上安装贝雷架,在贝雷架上搭设钢管架和调高装置。贝雷架为定型构件,钢管架采用扣件式脚手架。水平杆、立杆和连接杆用φ48钢管,脚手架规格为90×90cm,由于高度上空间较小,现场要根据实际情况设置钢管长度。
梁板宽度为12.75m,其中翼板宽度为1.5m;翼板横断面竖向钢管间距为90cm,设置116排;底板宽度为9.75m,下面铺设4或5排纵向钢管。方木下面每隔900mm一个工字钢,共116排。墩台处直接在其上采用落架砂桶、I36a工字钢搭设横向支撑,模板体系同钢管支架。具体布置如下图所示:

图 3‑4悬臂端模板支架示意图
钢管纵向设置900mm一段,模板体系同上排工字钢支架,横断面竖向钢管间距为90cm,设置2排排,横横断面水平方向设一排钢管。纵向钢管上面分别布置一排顶托。

图 3‑5临时支架纵断面示意图
临时支架基础沉降计算
由于基础所在地基为农田土,土质地基会产生沉降,为防止支架不均匀沉降,应对支架进行预压,预压方式是取钢箱梁自重的1.2倍预压3~7天,预压时进行沉降观测,稳定的标志是连续48小时沉降小于0.5mm,只有在沉降完成后才能进行钢箱梁精匹配。同时,在施工过程中加强对基础沉降的观测,如发现基础有沉降,应立即采用千斤顶调整钢箱梁标高,补偿基础沉降量。
临时支墩的施工要求
临时钢支墩的安装制作除平台连接和钢柱底脚连接用螺栓外,其他部位多以钢连接为主。所有接头焊缝必须满焊,根据每个支墩的受压情况,进行针对性的试压,试压合格后才能正式吊装。
以上是毕业论文大纲或资料介绍,该课题完整毕业论文、开题报告、任务书、程序设计、图纸设计等资料请添加微信获取,微信号:bysjorg。
相关图片展示:







课题毕业论文、开题报告、任务书、外文翻译、程序设计、图纸设计等资料可联系客服协助查找。
