LMQ3535集装箱门式起重机起升机构设计及ADAMS仿真毕业论文
2020-04-12 14:16:51
摘 要
集装箱门式起重机是现代港口使用最广泛的物流装卸机械之一。虽然现在起重机的设计已较为完整和稳定,但不论是结构还是材料,集装箱门式起重机还是存在不小的进步空间,所以近年来众多港口研究人员不断在设计上进行优化探索。
本文就LMQ3535集装箱门式起重机的起升机构设计过程做了一次概述。首先根据甲方公司提供的作业工况及要求,我们可以确定起重机总体参数,如起重量、起升高度及生产率等数据。继而对所设计的起升机构进行零部件计算选型,要求各零部件的输出转矩或制动转矩能满足起升作业要求。然后通过Solidworks进行三维建模,把设计数据转化为软件中的实体,更加直观的把选择的各零部件的配合关系可以显示出来。接着,将模型导入Adams软件中完成仿真分析,利用得到的曲线与理想曲线对比,就了解了此次设计机构的运动特性。这种运动曲线能直观反映出有哪些工作问题,提前预知了设计缺陷,以便设计者能及时矫正,也为后续制造提供了更优秀的设计方案。
关键词:集装箱门式起重机;起升机构;虚拟样机;运动特性
Abstract
Container gantry cranes are one of the most widely used logistics and handling machinery in modern ports. Although the design of cranes is now relatively complete and stable, container gantry cranes have a lot of room for improvement in terms of structure and materials. Therefore, many port researchers have continuously optimized their designs in recent years.
This thesis gives an overview of the design process of the lifting mechanism of the LMQ3535 container gantry crane. First of all, according to the operating conditions and requirements provided by Party A, we can determine the overall parameters of the crane, such as the weight, lifting height and productivity data. Then, the design of the hoisting mechanism of the designed parts and components is selected, and the output torque or braking torque of each component is required to meet the lifting requirements. Then through Solidworks 3D modeling, the design data into the software in the entity, more intuitive to the selection of the various parts of the relationship can be displayed. Then, the model was imported into Adams software to complete the simulation analysis. By comparing the obtained curve with the ideal curve, the motion characteristics of the design mechanism were understood. This kind of movement curve can directly reflect what work problems exist, predict design defects in advance so that designers can correct them in time, and also provide better design solutions for subsequent manufacturing.
Key words: container gantry crane; hoisting mechanism; virtual prototype; sports characteristics
目 录
第1章 绪论 1
1.1 目的及意义 1
1.2 国内外现状 1
1.3 本文主要工作 2
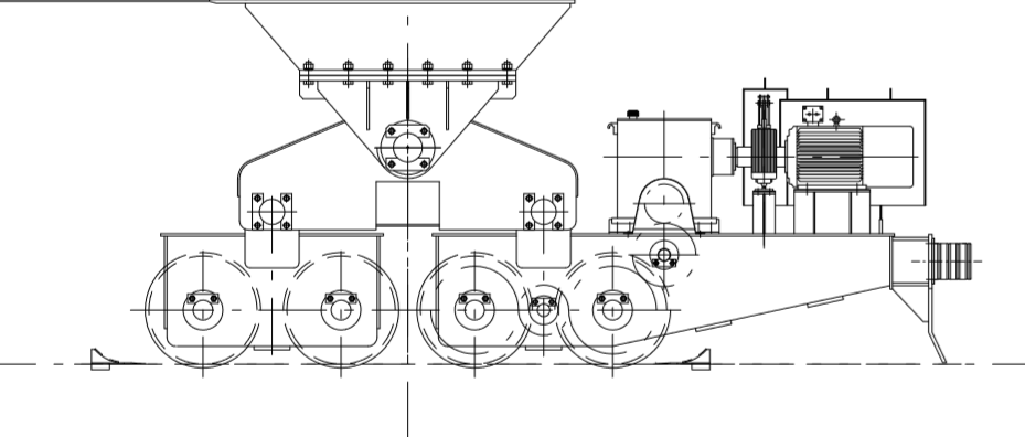
第2章 LMQ3535集装箱门式起重机总体设计 3
2.1 主要设计参数 3
2.2 生产率 4
2.2.1 理论工作循环时间 4
2.2.2生产率计算 6
2.3 确定各工作机构布置形式 6
2.3.1 起升机构 6
2.3.2 小车运行机构 7
2.3.3大车运行机构 8
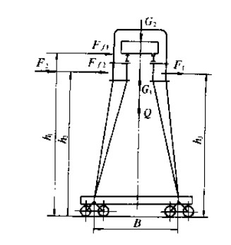
2.4 载荷计算及组合 9
2.4.1 载荷计算 9
2.4.2 载荷组合 13
2.5 计算支承反力与轮压 13
2.5.1 大车支承反力 14
2.5.2 大车轮压计算 16
2.6 稳定性计算 16
2.7 本章小结 17
第3章 起升机构选型计算 18
3.1 钢丝绳与滑轮的选择 18
3.2 卷筒的计算 19
3.3 电动机的计算选型 20
3.4 减速器的计算选型 22
3.5 联轴器的计算选型 23
3.6 制动器计算选型 24
3.7 本章小结 24
第4章 起升机构Solidworks三维建模 25
4.1 电动机建模 25
4.2 减速器建模 27
4.3 其他零部件模型 29
4.4 起升机构整机装配 31
第5章 起升机构的ADAMS仿真分析 32
5.1 起升机构模型的导入 32
5.2 添加约束与绳建模 33
5.3 驱动仿真分析 35
第6章 总结与展望 37
6.1 全文总结 37
6.2 环境影响与经济性分析 37
6.3未来展望 38
参考文献 39
致 谢 40
第1章 绪论
1.1 目的及意义
起重机是在一定空间范围内进行升降、运移等循环操作的机械。它是以间歇、重复的工作方式,起到对货物的起吊、移运和堆装等作业,是现代工业实现生产过程机械化和自动化的重要设备,它能够极大程度上提高工人的劳作效率,改善物料搬运条件,使得整体的工作周期大大缩短。因为这样的特性,其在各个领域都有广泛的应用。
其中集装箱门式起重机在港口得到广泛使用,因其具有对场地充分利用,能起吊各类货物,作业区域较大等特点。而使载荷升降的起升机构,是所有起重机械中不可或缺、最重要的机构,其工作性能的优劣也将直接影响到起重机的技术性能[1]。传统的门式起重机在起升机构的设计过程之中,设计人员通常依靠以往的经验,对门式起重机进行静态分析以及手工劳动校验,使得产品设计的周期长、成本高、质量差,导致产品在行业的竞争力不高[2]。在传统的设计方式的基础下,更多的行业相关研究人员着手于在开发的设计阶段,由细节入手,且不再局限于静载研究,而用更精确的算法及实验对动静载联合分析,做到对起重机起升机构的进一步优化。
1.2 国内外现状
为了对集装箱起重机械的性能进一步提高,国内外许多学者从各方面入手研究,希望得到更有效的突破。从研究成果来看,武汉理工大学计三有[3]建立数学空间模型以及二维平面系统,实验验证偏摆控制效果,为起升机构起升控制系统的有效性提供了参考;而从起重安全方面考虑,制动器的选择应用则显得尤为重要,金箍制动器公司的黄垂总[4]等人以及江麒龙起重机械公司的宋兴海[5]均倾向于采用动静载试验对制动器进行性能检测及优化,用更有效的方式判断制动器的合格与否; Zhang D及Wang B [6]等人建立大跨度重载龙门起重机数学模型,全面考虑刚、柔腿的耦合作用,为结构的挠度解析作了更有效的理论基础分析。
从上述研究人员的成果来看,对于起重机起升机构的设计,理论与实际相结合,不论是卷绕系统、偏摆系统还是制动系统,于动载实验考虑,选取合适的动载系数,建立有效的动力学模型[7],是提高设计效率的有效途径。但是,这样的提高还是不足以从根本上改变产品设计的周期长、成本高的问题。所以,随着科学技术和计算机技术的进一步发展,更多的辅助设计和辅助工程技术日趋成熟,虚拟样机技术的开发使用大大减轻了设计人员的工作量,也使得设计结果更具有可靠性。
虚拟样机的应用是起重机设计的一大进步,其可以在设计阶段,真实模拟起重机在各种工况下的动载特性,能对传统静态分析方法存在的缺陷进行部分补偿。并且,虚拟样机可以在相同的时间内“试验”更多的设计方案 ,这是物理样机所无法比拟的[8]。太原科技大学丁振兴[9]以及哈尔滨商业大学的吕书清[10]就结合Solidworks、Adams及Ansys针对起重机进行综合仿真分析,进一步提高了分析精度。同样的,意大利谢菲尔德大学的Arena.A等人就起重机承受风压载荷也惊喜三维建模仿真,通过实验较为准确的预测了风压结果[11],也为实体机械制造提供了更有效的参数,为后续工作的安全可靠性做了保证。釜山国立大学机电工程系Keum-Shik H, Quang H等人[12]对船载集装箱起重机进行仿真,模拟了“移动式港口”在复杂多变的海面上的载荷变化情况。当然,Bian Z等人[13]研究发现对于港口集装箱起重机停泊作业的仿真,虚拟样机也是行之有效的,包括了船舶,锚地,泊位等各种动作的集合仿真,为作业效率的提升有极大帮助。这从正面直接说明了虚拟样机于越来越多的机械领域中做出了不菲的贡献,它对动态特性模拟的方便有效的特性也越来越受设计人员的钟爱。
当然,较之军工制造、武器装备和医疗器械等方面,虚拟样机在起重机的应用程度还不够深入。而就未来港口起重机而言,轻型化、模块化和参数化[14]都是其智能的表现,也是未来探究的方向,而在这方面,传统的设计方式明显不能在短期内设计出优秀的产品,虚拟样机却能于同样时间内加工出更多的方案,也就能获得更优的结果来满足设计要求。于其他研究,无论是起升机构的节能优化[15],还是金属结构轻量化的研究[16],虚拟样机均能多次实验并得到最优结果。所以,虚拟样机的更加深入使用是未来设计的发展趋势。
以上是毕业论文大纲或资料介绍,该课题完整毕业论文、开题报告、任务书、程序设计、图纸设计等资料请添加微信获取,微信号:bysjorg。
相关图片展示:







课题毕业论文、开题报告、任务书、外文翻译、程序设计、图纸设计等资料可联系客服协助查找。
