江苏某镇自来水厂设计毕业论文
2020-04-15 21:31:00

毕业设计(论文)计算书
课题名称 | 江苏某镇自来水厂设计 |
院 (系) | 城市建设学院 |
专 业 | 给排水科学与工程专业 |
姓 名 | 侯斌 |
学 号 | 340415019 |
起讫日期 | 2019.2-2019.6 |
指导教师 | 吴慧芳 |
2018 年 06 月 01 日
目录
设计内容概述 3
1. 取水工程设计 3
1.1取水构筑物形式选择 3
1.2取水头部形式 3
1.3集水井设计 4
1.4取水泵房设计 5
2. 净水工程设计 9
2.1给水处理厂规模及流程 9
2.2药剂投加系统 10
2.3澄清池设计 13
2.4过滤系统 27
2.5加氯间设计计算 34
2.6清水池设计 35
2.6二泵站设计 37
3. 净水厂平面布置及高程布置 43
计算说明书
设计内容概述:
水量目标:一期建成,最高日产水量为5.0万m3/d。
水压目标:净水厂出厂水水压0.45MPa
本设计中自来水厂的工艺流程为:

- 取水工程设计
1.1取水构筑物形式选择
①岸边式:适用于河岸较陡,主流靠近河岸且有一定取水深度,水位的变化较小的情况。
②河床式:适用于河岸角度较缓,主流远离河岸,缺乏必要取水深度时。
综上:由于河床式式取水构筑物适用范围较广,选择河床式取水构筑物。
1.2取水头部形式
1.2.1形式选择:
形式:管式取水头部(喇叭口水平),头部外形选择菱形。
特点:构造简单、造价较低、施工方便;水平式适用水深较浅和纵坡降较小时的情况。
设计要求:喇叭口上应设置格栅用于粗大漂浮物;格栅的进水流速不宜过大。
1.2.2格栅面积计算:




1.2.3进水管设计:
- 一般要求——数目为两根,一根事故时另一根要求通过设计流量的70%;设计流速采用1.0-1.5m/s。
- 形式——选择自流管,一般采用钢管,不易冲刷的河床,管顶最小埋深在河床以下0.5m
1.3集水井设计
1.3.1布置形式:
集水井与一泵房合建,淹没式。
1.3.2进水间:
a.设置两个分格;
b.每一分格设置一个进水孔;
c.进水孔布置在侧面,对于侧面进水的要求为:
最顶层进水孔的上缘在设计最低水位下,距离水面大于0.3m;
最底层进水孔的下缘在设计最低水位下,距离河床大于0.5m。
1.3.3格网面积计算:
采用平板格网,面积为




1.4取水泵房设计
1.4.1水泵选择:
a.设计流量
泵站从水源取水,输送到净水构筑物的设计流量为


b.设计扬程
取水泵房输水至净水厂时的水泵扬程H为
枯水位时:


c.水泵和电机:

水泵参数
水泵型号 | 流量(L/s) | 扬程(m) | 转速(r/min) | 泵轴功率(kW) | 电机功率(kW) | 电压(v) | 效率(%) |
14sh-19 | 270~400 | 32~22 | 1470 | 99.7~105 | 125 | 300 | 82~88 |
14sh-19A | 240~360 | 26~16.5 | 1470 | 76.5~80 | 100 | 380 | 73~75 |
方案比较:
方案二水泵的运行适用于不同水位情况,洪水期水泵运行较经济,但14sh-19A型水泵作为14sh-19型水泵的备用泵,扬程偏低、效率低,且水泵型号多,台数多,管理维护不便。
方案一水泵台数较少,且只有一种型号,施工安装以及管理维护都比较方便;但洪水位时水泵工作效率较低。考虑到全年中高水位期不长,方案一优点较多,故采用方案一作为设计方案。
1.4.2机组尺寸的确定:
水泵及配套电机尺寸
水泵 | 电机 | W/kg | L/m | B/m | H/m | ||
型号 |
| 型号 |
| ||||
14sh-19 | 1200 | JR-138-4 | 2200 | 3400 | 3.45 | 1.3 | 0.95 |
1.4.3吸、压水管路计算:
每台水泵有单独的吸、压水管,吸、压水管路中对水流经济流速的基本要求为:
吸水管路流速:DNlt;250时 1.0~1.2m/s
DN≧250时 1.2~1.6m/s
压水管路流速:DNlt;250时 1.5~2.0m/s
DN≧250时 2.0~2.5m/s
因为本设计采用水泵型号为14sh-19,两用一备,每台水泵的额定流量为
,所以经计算吸水管路管径为DN450,出水管管径DN400。
因为横向联络管的流量应为两台较大泵并联流量即
,因为每条输水管按最大总流量的75%考虑,即,所以取
。
1.4.4泵房设计计算
(1)平面尺寸设计
本设计泵房中水泵采用横向排列。
①水泵及机组到门厅一侧的距离:

②水泵出水侧到墙壁距离:

③水泵进水侧到墙壁距离:

④电机突出部分与配电设备的净距:

⑤水泵之间的净距:

机械维修平台的长度取
,过道的长度取
。
则
泵房长度

取24.0m
泵房宽度
取8.0m
(2)泵房高度设计

①吊车梁的高度

②滑车的高度

③电动葫芦的极限长度

④起重绳的垂直长度

⑤最高一台电机的高度

⑥吊起物底部到最高一台电机机顶的高度

⑦最高一台电机到地坪的高度

⑧吊起物底部到进口处室内平台的高度

则泵房高度

(3)吸水井设计
本设计采用吸水井与一泵房合建的方式。
因为吸水井的有效容积应大于等于最大一台水泵3分钟出水量,又因为本设计中一泵站水泵型号统一,所以经计算得:吸水井的有效容积不小于
,最终确定的吸水井尺寸为
。
- 净水工程设计
2.1给水处理厂规模及流程
2.1.1给水处理厂的设计规模
根据最高日设计流量计算,为(1 5%)50000
/d=52500
/d(5%为水厂自用水量)
2.1.2处理厂工艺流程的选择
本工程选用地表水作为城市供水水源,地表水水源水位变化不大,色度较稳定,浊度硬度能稳定在一个固定的范围内,并不存在Fe、Mn过量等问题,因此水处理流程如图所示:
水源→取水泵站→机械搅拌澄清池→V型滤池→加氯消毒→清水池→二泵站→用户
2.2药剂投加系统
2.2.1混凝剂选择:
名称 | 硫酸铝 | 硫酸亚铁(绿矾) | 三氯化铁 | 聚合氧化铝(PAC)(又名 碱式氧化铝) |
化学式 |
|
|
|
|
对水温和PH的适性 | 适用于 20℃~40℃; PH=5.7~7.8时,主要去除水中悬浮物; PH=6.4~7.8时,处理浊度高、色度低的水; | 适用于碱度和浊度高、PH=8.5~11.0的水; 受温度影响小 | 不大受温度影响,适用于PH=6.0~8.4 | 温度适应性强,适用于PH=5.0~9.0 |
使用条件 | 一般都可适用,原水须有一定碱度; 处理低温低浊水时,絮凝效果差,絮凝效果差,投加量大时,有剩余 | 处理低浊度水时,效果好于铝盐; 不适于色度高和含铁量高的水; 使用时,一般要把 | 适用于高浊度原水,刚配制的水溶液温度高 | 适用于低浊、高浊、和污染的原水 |
| 腐蚀性较小 | 价格低,絮凝体易沉淀,易腐蚀溶液池,因此需有溶液池防锈涂料; | 絮凝体比重大,易下沉,易溶解,杂质少; 对金属和混凝土腐蚀极大; | 操作方便; 腐蚀性较小; 应用较普遍; |
据设计资料中提供的硫酸铝、三氯化铁、碱式氯化铝的性质比较,选择碱式氯化铝(
)(10%)作为水处理用混凝剂。
2.2.2混合设施:
常用混合方式的主要特点及使用
方 式 | 特 点 及 使 用 条 件 | |
管式混合 | 管道混合 | 混合简单,无需另建混合设施,混合效果不稳定,流速低时,混合不充分 |
静态混合器 | 构造简单,无运动设备,安装方便,混合快速均匀;当流量降低时,混合效果下降 | |
水泵混合 | 混合效果好,不许增加混合设施,节省动力,但使用腐蚀性药剂时,对水泵有腐蚀作用。适用于取水泵房与水厂间距小于150m的情况 | |
机械混合 | 混合效果好,且不受水量变化影响,适用于各种规格的水厂,但需增加混合设备和维修工作 | |
本设计采用“管式静态混合器”,管式静态混合器的构造简单、安装方便、维修费用低,且水厂运行稳定,混合效果可保持稳定所以选用管式静态混合器。

管式静态混合器
2.2.4配水井:
设计流量

则配水井直径


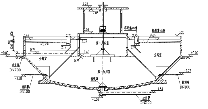
2.3澄清池设计
2.3.1形式比选:

2.3.2工作原理:

2.3.3设计参数
本设计按照不加斜板进行,考虑以后加斜板,计算过程中对进水、出水、集水等按照2Q进行校核。
机器设置两座,则

其中5%为水厂自用水量。
- 第二絮凝室
取第二絮凝室导流板截面积
=0.035㎡,流速
=40mmm/s
则第二絮凝室截面积

第二絮凝室内径

取
=7m,絮凝室壁厚
=0.25m
则第二絮凝室外径为

停留时间取60s,则第二絮凝室高度为:


(2)导流室
导流室内导流板截面积取
导流室面积:
则导流室内径为
,取10m
取导流室壁厚
=0.1m
则导流室外径为

第二絮凝室出水窗高度为:

导流室出口流速
=0.04m/s
则导流室出口面积为

出口断面宽为

出口垂直高度

(3)分离室
取分离室流速
=0.001m/s
则分离室面积为

澄清池总面积为

澄清池直径为
,取22m。
(4)池深
取水停留时间取为T=1.5h
则池子有效容积为

考虑增加4%的结构容积,则池子计算总容积

取池子超高H0=0.30m

池子直壁部分高度H4=1.80m
池子直壁部分容积


取圆台高度为:H5=3.7m;池子圆台斜边倾角为45°
则底部直径为

澄清池底部采用球壳式结构,取球冠高度H6=1.05m
圆台容积:

球冠半径:

球冠容积:

池子实际有效容积:

实际总停留时间:

池子总高度:


(5)配水三角堰
进水流量增加10%的排泥量,槽内流速取u3=0.5m/s
则三角堰直角边长为

三角堰采用孔口出流,孔口流速同u3
则出水孔总面积为

取空口直径为0.10m,出水孔总数为86个;为施工方便,采取沿三角堰,每4°设置一孔,共90个。
孔口实际流速

(6)第一絮凝室
取第二絮凝室底板厚度
则第一絮凝室上端直径为

第一絮凝室高度为

伞形板延长线交点处直径为:

取泥渣回流量为Q’’=4Q,回流速度u4=0.15m/s
则回流缝宽度

设裙板厚度为
=0.06m
则伞形板下端圆柱直径为:

按照等腰三角形计算
伞形板下端圆柱体高度为:

伞形板离池体高度为:

伞形板锥部高度为:

(7)容积计算
第一絮凝室:

第二絮凝室:

分离室:

- 进水系统
取进水流速为
=1.0m/s,进水管管径

设计中取进水管管径为DN700,则实际进水流速为:

据此设计出水管管径为700mm。
(9)集水系统
a.辐流式集水槽:
共设12根辐流式集水槽,每根集水槽流量为

设辐射槽宽b1=0.25m,槽内水流速度u5=0.4m/s,槽内坡降iL=0.1m
则槽内终点水深为

槽内临界水深:

槽起点水深为:

按2q1校核,取槽内水流流速μ‘51=0.6m/s,



槽起点断面高为:0.27 0.07 0.05 0.20=0.59m
槽终点断面高为:0.33 0.07 0.05 0.20=0.65m
b.环形集水槽

槽内终点水深为:

槽内起点水深为:


设计取用环槽内水深为0.7m,槽断面高为0.7 0.07 0.05 0.30=1.02m(槽超高定为0.3m)。
c.总出水槽
设计流量为Q=0.304m3/s,槽宽b3=0.7m
总出水槽按矩形渠道计算,槽内水流流速μ53=0.8m/s,槽底坡降il=0.10m,槽长为5.8m,n=0.013
槽内终点水深:








槽内起点水深:
(10)排泥设施:
污泥浓缩室:
总容积

分设四斗,每斗

设污泥斗上底面积:

其中的

下底面积:

污泥斗容积:

总容积:

排泥周期:

S1-S4与T0关系值:
S1-S4 | 90 | 190 | 290 | 390 | 490 | 590 | 690 | 790 | 890 | 995 |
T0 | 113.2 | 53.6 | 35.1 | 26.1 | 20.7 | 17.2 | 14.8 | 12.9 | 11.4 | 10.2 |
排泥历时:
设污泥斗排泥管为DN100,其断面
,
局部阻力系数:
入口处 
三通
出口处 
45度弯头 
闸阀

流量系数:

排泥流量:

排泥历时:

放空时间:

流量系数:

瞬时排水量:

放空时间:
(s)
式中 




则

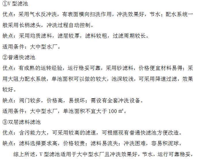
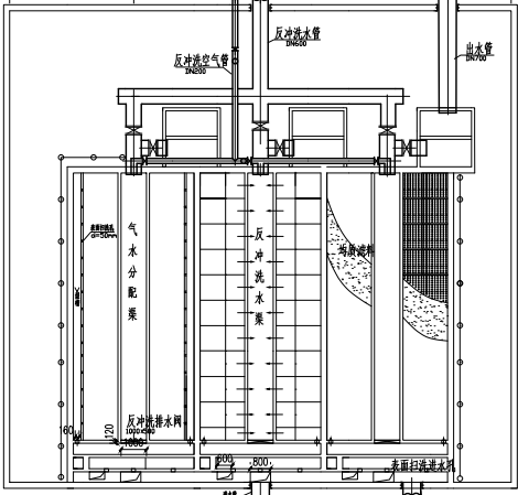
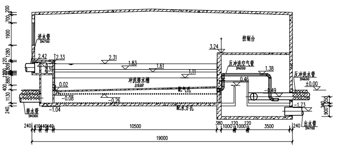
2.4过滤系统
2.4.1滤池比选:

本设计采用V型滤池。
2.4.2尺寸设计计算
设计中共设两组滤池,每组采用单排布置;
每组滤池的池数为三个,单池采用双格布置。
设计水量:
滤速:v=10m/h
冲洗强度:①气冲强度
②气水同冲:气冲
水冲强度
③单水冲:强度
冲洗周期24h,冲洗时间12min;
气源:鼓风机;冲洗水:水泵提供。
- 滤池面积:


单格滤池面积


单格滤池的尺寸为3.5m×10.5m。
单格滤池的实际面积:


则

正常过滤时实际滤速




(2)进水系统
a.进水总渠


设计中取H1=1.5m,v1=0.5m/s,


b.气动隔膜阀的阀口面积

c.进水堰堰上水头




d.V型进水槽



V型槽垂直高度为380mm,壁厚为80mm,V型槽采用钢筋混凝土结构。
e.V型槽扫洗小孔


验算小孔流速v4

符合要求。

(3)反冲洗系统:
a.气、水分配渠(按反冲洗水量计算)


反冲洗水管的管径
取600mm
b.配水方孔面积和间距


c.布气圆孔
布气圆孔的数目及间距和配水方孔一样,采用直径为40mm的圆孔
单孔面积为
;
所有圆孔的面积之和为
。
d.空气反冲洗时所需空气的量


e.底部配水系统

f.过滤系统

(4)排水系统:
a.排水渠终点水深


b.排水渠起点水深


按照要求,排水槽堰顶应高出石英砂滤料0.5m,则中间渠总高为滤板下清水区的高度 滤板厚 滤料层厚 0.5,
即0.85 0.10 1.20 0.50=2.65m
(5)滤池总高度:

2.5加氯间设计计算
2.5.1消毒剂选择:
名性 称能 | 液氯、漂白粉 | 二氧化氯 | 臭氧 |
消毒杀菌 | 优良(HOCl) | 优良 | 优良 |
灭病毒 | 优良(HOCl) | 优良 | 优良 |
灭活微生物效果 | 第三位 | 第二位 | 第一位 |
PH值影响 | 消毒效果随PH值增大而减小,PH=7时,消毒效果最好 | PH影响较小,PHgt;7时较有效 | Ph值影响小,PH值小时,剩余臭氧残留较久 |
在管网中的剩余消毒作用 | 有 | 比液氯有更长的剩余消毒时间 | 无,需补加氯 |
国内应用情况 | 广泛 | 在城市水厂中极少应用 | 较少 |
接触时间 | 30min |
| 数秒至10min |
适用条件 | 极大多数水厂用氯消毒,漂白粉只适用于小水厂 | 原水中有机物如酚污染严重时,须在现场制备,直接应用 | 制水成本高,适用于有机污染严重的情况。因无持续消毒作用,在进入管网的水中还需加少量氯消毒 |
本设计选择液氯为消毒剂。
2.5.2加氯量计算:
加氯量Q计算


2.6清水池设计
2.6.1尺寸计算
(1)有效容积

清水池共设2座,则每座清水池的有效容积V1为:
(2)平面尺寸


2.6.2管道系统
(1)进水管


(2)出水管
清水池的出水管按照出水最大流量计算:


则出水管管径:


(3)溢流管
溢流管的直径与出水管管径相同,取为DN700mm。在溢流管管端设喇叭口,管上不设阀门。出口设置网罩,防止虫类进入池内。
(4)排水管
池水放空时间为2h,排水管内流速取1.2m/s,则


2.6.3清水池的布置
(1)导流墙

2.7二泵站设计
2.7.1水泵选择
- 设计流量:
泵站从清水池取水,输送到用户的设计流量为


- 设计扬程:



- 水泵及电机参数:
水泵表(350S-75)
型号 | 扬程 (M) | 流量(m3/h) | 转速(r/min) | 长度(mm) | 宽度(mm) | 高度(mm) | 吸上高度(m) |
350S75 | 90 | 1260 | 1450 | 1271.5 | 1250 | 1017 | 4.03 |
配套电机
型号 | 电机功率 (kw) | 电压 (V) | 长度 (mm) | 宽度 (mm) | 高度 (mm) |
Y355L-4 | 280 | 380 | 1515 | 730 | 985 |
2.8.2泵房设计计算
(1)平面尺寸设计
本设计泵房中水泵采用横向排列。因为水泵均选用单级双吸式离心泵,,横向排列虽然增长泵房的长度,但跨度可减小管配件简单,进出水顺直水利条件好,检修场地宽畅。
①水泵突出部分到门厅距离:

②水泵出水侧到墙壁距离:

③水泵进水侧到墙壁距离:

④电机突出部分与配电设备的净距:

⑤水泵之间的净距:

机械维修平台的长度取
,过道的长度取
。
则
泵房长度

取26.5m
泵房宽度
取8m
(2)泵房高度设计
本设计选用单轨吊车参数为:起升高度
,钢丝绳直径为
,绳总长度为
。
本设计采用半地下式二级泵房,因为水泵和电机的型号统一,所以最高一台电机的高度为
;
又因为吊起物底部和最高一台机组顶的距离不小于0.5m,所以泵房低于地面2m地面以上泵房的有效高度为5.5m,
①单轨吊车梁的高度

②滑车的高度

③电动葫芦的极限长度(钢丝绳绕紧)

④起重绳的垂直长度

⑤最高一台电机的高度

⑥吊起物底部到最高一台电机机顶的高度

⑦最高一台电机到地坪的高度

⑧吊起物底部到进口处室内平台的高度

则泵房高度

(3)吸水井设计
本设计采用吸水井与二泵房合建的方式。
因为吸水井的有效容积应大于等于最大一台水泵3分钟出水量,又因为本设计中二泵站水泵型号统一,所以经计算得:吸水井的有效容积不小于
,最终确定的吸水井尺寸为
。
- 吸、压水管路设计
吸、压水管路中对于水流经济流速的基本要求为:
吸水管路流速:DNlt;250时 1.0~1.2m/s
DN≧250时 1.2~1.6m/s
压水管路流速:DNlt;250时 1.5~2.0m/s
DN≧250时 2.0~2.5m/s
因为本设计采用水泵型号为350S-75,三用一备,每台水泵的额定流量为
,所以经计算吸水管路管径为DN400,出水管管径DN300;因为横向联络管的流量应为两台较大泵并联流量即
Q=600 L/s,因为每条输水管按最大总流量的75%考虑,即
,所以取DN700。
- 净水厂平面布置及高程布置
3.1水厂平面布置
水厂各水处理构筑物和辅助建筑物情况如下:

3.2水厂的高程布置
3.2.1净水工艺流程高程计算

本设计采用清水池的最高水位与地面标高相同,又因为水厂所在区域地势平坦,地面标高设为0.00m,则清水池水位也为0.00m。
连接管中设计流速
连接管道 | 设计流速(m/s) | 备注 |
配水井至澄清池 | 1.0~1.2 | |
澄清池至滤池 | 0.6~1.0 | 流速宜取下限以留有余地 |
滤池至清水池 | 0.8~1.2 | 流速宜取下限以留有余地 |
清水池至吸水井 | 1.0`1.2 |
- 滤池至清水池
由设计流量和连接管的设计流速可得断面面积,
经计算可得,滤池至清水池的连接管设计参数为:
,
,
沿程水头损失

局部水头损失

连接管线的总水头损失

V型滤池内部的水头损失取
总水头损失为

因此,滤池水面相对标高为
。
(2)澄清池至滤池
由设计流量和连接管的设计流速可得断面面积,
经计算可得,澄清池至滤池的连接管设计参数为:
,
,
DN700的闸阀局部阻力系数为
又因为澄清池至滤池管长为
,
则沿程水头损失

局部水头损失

连接管线的总水头损失

澄清池内部的水头损失取
总水头损失

因此,澄清池水面标高为
。
(3)配水井至澄清池
由设计流量和连接管的设计流速可得断面面积,
经计算可得,配水井至澄清池的连接管设计参数为:
,
,
DN700的闸阀局部阻力系数为
又因为澄清池至滤池管长为
,
则沿程水头损失

局部水头损失

连接管线的总水头损失

配水井内部的水头损失取
总水头损失

则配水井内的水面标高为
。
(4)清水池至吸水井
由设计流量和连接管的设计流速可得断面面积,
经计算可得,清水池至吸水井的连接管设计参数为:
,
,
DN700的闸阀局部阻力系数为
,DN700的弯管局部阻力系数为
又因为澄清池至滤池管长为
,
则沿程水头损失为

局部水头损失为

连接管线的总水头损失为

吸水井内部的水头损失取
总水头损失为

则吸水井内的水面标高为
。
参考文献:
1.《地表水环境质量标准》 (GB3838-2002)
2.《地下水环境质量标准》 (GB/T14848-93)
3.《生活饮用水水源水质标准》 (CJ3020-93)
以上是毕业论文大纲或资料介绍,该课题完整毕业论文、开题报告、任务书、程序设计、图纸设计等资料请添加微信获取,微信号:bysjorg。
相关图片展示:
课题毕业论文、开题报告、任务书、外文翻译、程序设计、图纸设计等资料可联系客服协助查找。

/kg
/kg


和
,影响水质
转化成